257 Park Avenue South 5th Floor

Park Avenue South

Park Avenue South

260 Park Avenue South Nyc Condo Apartments Cityrealty

260 Park Avenue South Nyc Condo Apartments Cityrealty

250 Park Avenue South Trd Research

250 Park Avenue South Trd Research

Circa Central Park City Living Apartment Theatrical Scenery Floor Plans

Circa Central Park City Living Apartment Theatrical Scenery Floor Plans

Rent Lease Office 250 Park Avenue South

Rent Lease Office 250 Park Avenue South

Herzog De Meuron S 56 Leonard Jenga Tower Nears Completion In New York Skyscraper Architecture New York Architecture Architecture

Herzog De Meuron S 56 Leonard Jenga Tower Nears Completion In New York Skyscraper Architecture New York Architecture Architecture

Herzog De Meuron S 56 Leonard Jenga Tower Nears Completion In New York Skyscraper Architecture New York Architecture Architecture

The registration start date is july 31 2014.

257 park avenue south 5th floor.

South 5th floor new york ny 10010. Is a business entity registered at new york state department of state with entity identifier is 4615106. The companies are michigan avenue media llc and golden gate media llc. It is a class b building with a large number of units available for rent.

257 park avenue south floor 5 new york new york 10010 toneify inc. The initial filling date is february 28 2014. Style type text css font face. 156 5th avenue an office building first constructed around 1900 has 13 stories and 184 509 square feet.

There are 4 office spaces available for lease at 257 park avenue south new york ny 10010 totaling 50 805 sqft. View detailed information and reviews for 257 park ave s in new york new york and get driving directions with road conditions and live traffic updates along the way. Is a business entity registered at new york state department of state. There are 2 company that have an address matching 257 park ave.

Dos id 4536535 is a corporation registered with new york state department of state nysdos. The address is 257 park avenue south floor 5 new york new york 10010. The business entity id is 4314267. New york new york 257 park avenue south t park avenue south ground floor lower level mezzanine frontage.

257 park ave s directions location tagline value text sponsored topics. The gramercy park building is located at 257 park avenue south in the gramercy park neighborhood ny new york 10010. 257 park avenue south is a building located in the gramercy park neighborhood in manhattan ny. The class b office building was completed in 1913 and features a total of 226 000 sqft.

The presbyterian building rests at the corner of 5th avenue and 20th street. The address is 257 park avenue south floor 5 new york new york 10010.

Manhattan Records 135m In Sales Full Floor Unit At 432 Park Nets Top Contract At 28m Cityrealty

Manhattan Records 135m In Sales Full Floor Unit At 432 Park Nets Top Contract At 28m Cityrealty

254 Park Avenue South New York Ny 10010 Sales Floorplans Property Records Realtyhop

254 Park Avenue South New York Ny 10010 Sales Floorplans Property Records Realtyhop

Rio Casino Resort Located In Klerksdorp South Africa Is A 266 330 Square Feet Offering A 257 Slot And Table Games Casino Southafr Casino Resort Resort Rio

Rio Casino Resort Located In Klerksdorp South Africa Is A 266 330 Square Feet Offering A 257 Slot And Table Games Casino Southafr Casino Resort Resort Rio

432 Park Avenue Floor Plan 432 Park Avenue Floor Plans How To Plan

432 Park Avenue Floor Plan 432 Park Avenue Floor Plans How To Plan

Wedding Cake Skyscraper 120 Wall Street A Typical Example Built In 1930 The Building Is Essentially Dwarfed At This Point By Its Skyscraper Facade Building

Wedding Cake Skyscraper 120 Wall Street A Typical Example Built In 1930 The Building Is Essentially Dwarfed At This Point By Its Skyscraper Facade Building

Streeteasy The Gramercy Place Condo At 280 Park Avenue South In Flatiron 22j Sales Rentals Floorplans Streeteasy

Streeteasy The Gramercy Place Condo At 280 Park Avenue South In Flatiron 22j Sales Rentals Floorplans Streeteasy

Billionaires Row Manhattan Wikipedia

Billionaires Row Manhattan Wikipedia

Top Sales And Contracts 215m In Manhattan Sales Include Record Breaking Soho Penthouse And Discounted Zaha Hadid Designed Condo Cityrealty

Top Sales And Contracts 215m In Manhattan Sales Include Record Breaking Soho Penthouse And Discounted Zaha Hadid Designed Condo Cityrealty

Streeteasy The Gramercy Place Condo At 280 Park Avenue South In Flatiron 18l Sales Rentals Floorplans Streeteasy

Streeteasy The Gramercy Place Condo At 280 Park Avenue South In Flatiron 18l Sales Rentals Floorplans Streeteasy

Photo Location Park Avenue South N8 Light Locations Edwardian House Living Room Designs House

Photo Location Park Avenue South N8 Light Locations Edwardian House Living Room Designs House

293 Park Avenue Armory Herzog De Meuron

293 Park Avenue Armory Herzog De Meuron

Billionaires Row Manhattan Wikipedia

Billionaires Row Manhattan Wikipedia

Films Core Real Estate

Films Core Real Estate

Nafsika Astir Palace Hotel Vouliagmeni Four Seasons And Astir Palace Vouliagmeni Announce Plans To Transform Legendary Hotel Floor Greece Hotels Palace Hotel

Nafsika Astir Palace Hotel Vouliagmeni Four Seasons And Astir Palace Vouliagmeni Announce Plans To Transform Legendary Hotel Floor Greece Hotels Palace Hotel

22nd Street Forgotten New York

22nd Street Forgotten New York

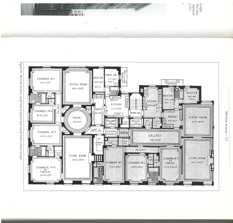
New York Apartment Houses Of Rosario Candela And James Carpenter Book At 1stdibs

New York Apartment Houses Of Rosario Candela And James Carpenter Book At 1stdibs

Hearst Castle In San Simeon State Park Ca Usa Hearst Castle San Simeon State Park San Simeon California

Hearst Castle In San Simeon State Park Ca Usa Hearst Castle San Simeon State Park San Simeon California

18th Street A New York Songline

18th Street A New York Songline

Https Encrypted Tbn0 Gstatic Com Images Q Tbn And9gcrjf8as1lzo7yjoxvs6yab16u 3qxdqwhzup4ttkcy Usqp Cau

Https Encrypted Tbn0 Gstatic Com Images Q Tbn And9gcrjf8as1lzo7yjoxvs6yab16u 3qxdqwhzup4ttkcy Usqp Cau

Source : pinterest.com